3 2

3 bed House - Detached - Sold Subject to Contract
Salters Meadow, Cheslyn Hay, Walsall
£375,000 (Freehold)

Sought after Cheslyn Hay location | Close to local amenities | Catchment for outstanding primary and two high schools | Well maintained and modernised throughout | Parking for 2 cars | Garage | Downstairs WC | Ensuite to master bedroom | Open plan kitchen diner |

HS Homes welcomes to the market this sought-after three-bedroom detached family home, ideally positioned in the heart of Cheslyn Hay and within walking distance of local amenities. The property sits within the catchment area for an outstanding primary school and two highly regarded high schools, while also benefiting from excellent commuter links via the M6, M6 Toll and surrounding motorway networks.

Externally, the home offers excellent parking with two separate driveways—one to the front and a one to the side - which leads on to a seperate single garage. The frontage is attractively landscaped, providing strong kerb appeal.

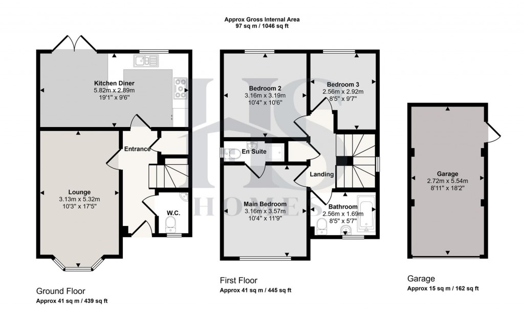
Upon entering the property, you are welcomed into a spacious entrance hall featuring stairs to the first floor, a generous inset storage cupboard and a convenient downstairs WC with sink and frosted window. The lounge is positioned to the front of the property and is a comfortable, well-proportioned room enhanced by a large bay window allowing plenty of natural light.

To the rear of the home is the double-width kitchen diner, fitted with a modern-style kitchen and integrated appliances. A window overlooks the garden, while the dining area benefits from double patio doors opening directly onto the rear garden—ideal for family living and entertaining.

The rear garden is well maintained, offering a combination of patio and lawned areas, and runs alongside the detached garage, which benefits from an access door directly from the garden.

To the first floor, the property offers three bedrooms and a family bathroom. The main bedroom is located to the front and enjoys a large window and its own ensuite, comprising WC, sink and shower with a frosted window to the side. The family bathroom is also positioned to the front and includes a bath, WC and wash basin with a frosted window. Bedrooms two and three are located to the rear, both overlooking the garden. The landing also benefits from a large inset storage cupboard.

Floorplans For Salters Meadow, Cheslyn Hay, Walsall
EPC For Salters Meadow, Cheslyn Hay, Walsall
Arrange a viewing for Salters Meadow, Cheslyn Hay, Walsall

For further details on this property please call us on:
0121 430 4448

Download PDF View PDF Brochure Arrange Viewing